Gulaistraat 20
Overview
Omgeving
Deze goed onderhouden woning staat in een rustige buurt net buiten het stadscentrum, in een zijstraat van de Wanicaweg, die uitkomt op Leiding 11a. Met zijn goed bestrate wegen en grote percelen kenmerkt dit woongebied zich als ruimtelijk, modern en groen. Zowel de Commissaris Weythingweg als de Hendrikstraat (waartussen deze woonwijk ligt) behoren tot de bekende straten van Paramaribo waar er van alles te vinden is. Van winkels tot scholen en van restaurants tot kappers. Langs de Leysweg rijdt het openbaar vervoer en vanwege de vele zijwegen is het mogelijk spitsmomenten te ontwijken.
Indeling
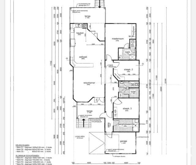
De woning is slechts 6 jaar oud en bevindt zich op een eigendomsperceel van 498m2. De totale oppervlakte van de woning zelf is 175m2 en beschikt over 3 slaapkamers, 2 badkamers met toilet, warm en koud water, een hydrofoor voor waterdruk, beveiligingscamera’s en een alarmsysteem.
Met deze indeling biedt het huis voldoende ruimte en comfort voor een gezin. De moderne voorzieningen en beveiligingsmaatregelen zorgen voor gemak en gemoedsrust. Het perceel is eigendom, waardoor u volledige controle en eigenaarschap heeft.
Bijzonderheden:
camera systeem aanwezig (via mobiel te bekijken)
Details
-
Perceel Opp:498 m2
-
Woon Opp:175 m2
-
Slaapkamers:3
-
Badkamers:2
-
Prijs:€99.000
-
Status:
-
Titel:Eigendom
-
Toiletten:2
Amenities
- Alarm
- Dievenijzer
- Warm Water













